Transformation d’un petit studio pour location saisonnière

Projet Bressigny : Aménagement et rénovation d'un studio destiné à la location saisonnière à Angers

Aménager et rénover un petit studio pour la location saisonnière demande une conception intelligente afin d’optimiser chaque mètre carré tout en offrant une expérience attractive aux voyageurs.

Dans ce projet réalisé par Gabrielle Home Design, l’objectif était la rénovation et l’aménagement d’un studio avec SPA pour de la location saisonnière haut de gamme, en intégrant :

  • un lit king size confortable
  • une cuisine fonctionnelle
  • un espace spa
  • des rangements optimisés

Grâce à une rénovation complète et un aménagement sur mesure, ce studio est devenu un hébergement premium parfaitement adapté à la location courte durée.

Le studio avant rénovation

Avant les travaux, le studio présentait plusieurs contraintes :

  • un espace peu structuré 
  • peu de rangements
  • Peu lumineux
  • une décoration peu valorisante

L’objectif du projet était donc de repenser totalement l’organisation de l’espace afin d’améliorer la fonctionnalité et l’attractivité du logement.

studio avant renovation projet bressigny

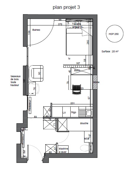
Conception et plans d’aménagement

La première étape du projet a consisté à concevoir un plan d’aménagement optimisé permettant d’intégrer plusieurs zones de vie dans une surface compacte.

Les zones créées :

  • espace nuit avec lit king size grace à une claustra en bois
  • kitchenette compacte
  • espace spa détente
  • rangements intégrés

Ce travail de conception permet de structurer l’espace sans cloisonner la pièce.

Modélisation 3D du projet d'aménagement

Une claustra en bois sépare l’espace jour de l’espace nuit du studio.

L’ajout d’un spa est l’élément différenciant de ce projetDans la location saisonnière, ce type d’équipement permet :

  • d’augmenter l’attractivité du logement
  • de se démarquer sur les plateformes de réservation
  • d’offrir une expérience détente aux voyageurs

L’espace spa a été intégré avec :

  • éclairage d’ambiance
  • matériaux chaleureux
  • décoration minimaliste

Pour offrir un niveau de confort supérieur, le projet intègre un lit king size (180 × 200 cm).

Solutions d’optimisation utilisées :

  • rangements autour du lit
  • éclairage d’ambiance

Ce choix apporte immédiatement une sensation d’hôtel haut de gamme.

Vues 3D du projet d’aménagement : 

 

 
Projet Bressigny projection 3D cuisine
Vue 3D du projet de rénovation Bressigny

Résultat après rénovation du studio

Après les travaux, le studio offre désormais :

  • un espace optimisé
  • un design contemporain
  • un niveau de confort élevé

Chaque élément a été pensé pour améliorer l’expérience des voyageurs et valoriser le bien immobilier.

 

Projet Bressigny-rénovation du salon

Conclusion

Ce projet démontre qu’il est possible de transformer un petit studio en logement premium parfaitement adapté à la location saisonnière.

Grâce à une conception sur mesure et une optimisation intelligente de l’espace, ce studio propose aujourd’hui :

  • un lit king size confortable
  • une cuisine fonctionnelle
  • un espace spa unique
  • une ambiance chaleureuse et contemporaine

Pour concevoir des projets d’aménagement et de rénovation sur mesure, Gabrielle Home Design accompagne ses clients dans la transformation de leurs espaces.

Découvrez d’autres projets réalisés par Gabrielle Home Design dans la section réalisations.

 

Laisser un commentaire